募集中
金沢市本多町3丁目10-15
《戸建て》
150,000円
物件種別
一戸建
構造・規模
木造
瓦葺2階建
土地面積
179.77㎡
建物面積
162.75㎡
占有面積
間取
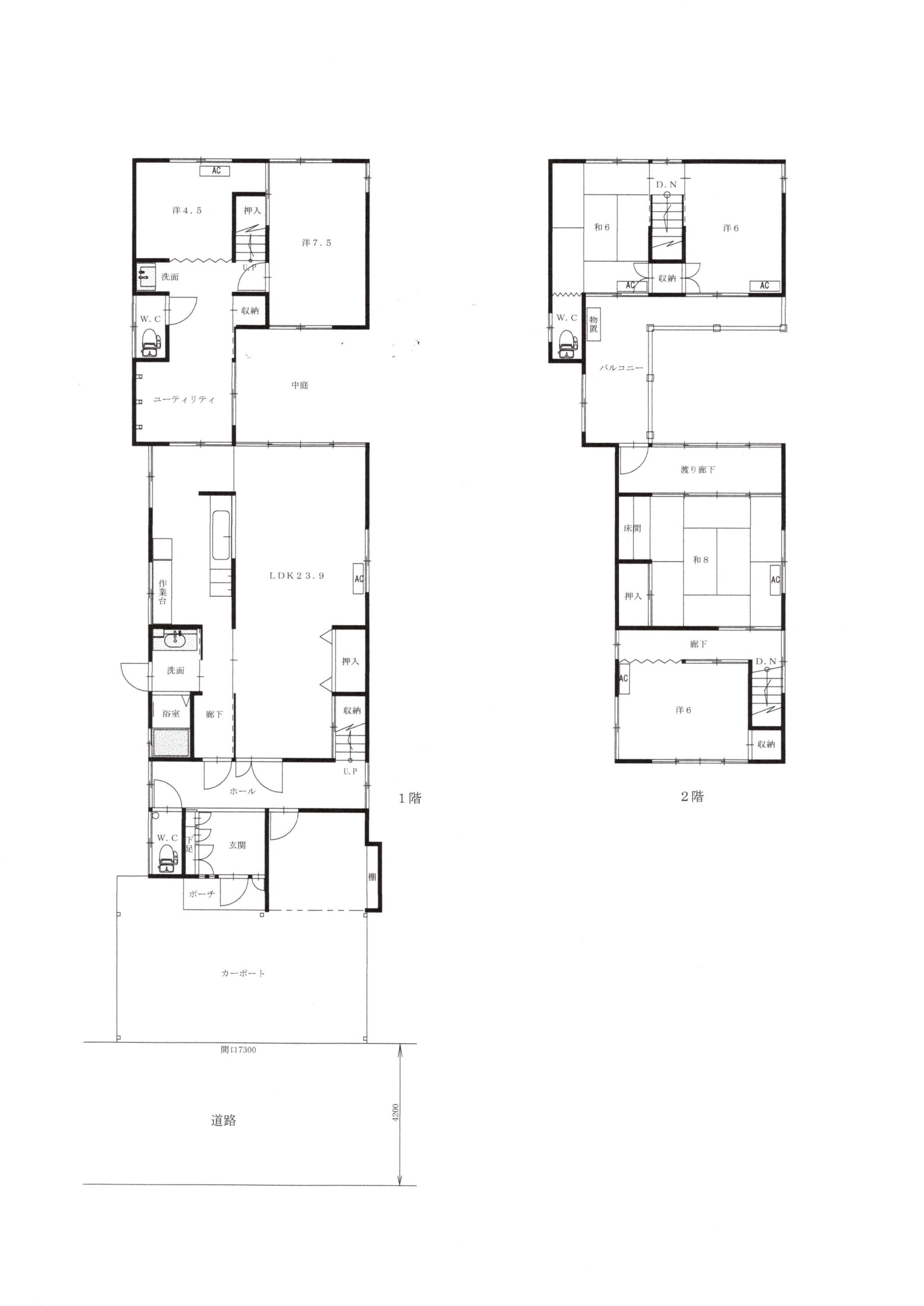
1階:LDK23.9・洋7.5・洋4.5・UT・浴室・洗面2ヶ所・WC2ヶ所・中庭
2階:和8・和6・洋6・洋6・WC・バルコニー
2階:和8・和6・洋6・洋6・WC・バルコニー
設備
電気:北陸電力
ガス:都市ガス
飲用水:公営
排水:下水道
ガス:都市ガス
飲用水:公営
排水:下水道
建築年月
1962年10月
駐車場
有(3台可)
学校区
犀桜小学校
城南中学校
城南中学校
最寄り施設
石川県立工業高校より30m
最寄の交通機関
思案橋バス停より徒歩4分
現況
空家
道路
北西向き 公道4.2m
引渡日
即
引渡態様
仲介
備考
共同生活向きの6LDK住宅
特長










































